項目概況

靈橋產業區塊人才公寓項目地點位于杭州市富陽區靈橋鎮,該項目北側同登路,南側規劃支路,東側靈禮路,西側王家宕路。
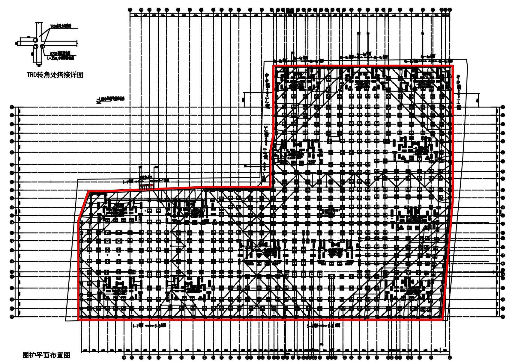
本工程規劃用地41878m2,總建筑面積180097m2,其中地上建筑面積104695m2,地下建筑面積75042m2。地塊區域內含20層11棟,18層2棟,一層沿街商鋪及配套用房,2層整體地下室。基坑支護方式采用TRD工法+鋼筋混凝土支撐支護體系。
TRD工法施工要求
1、水泥土地下連續墻采用P.O.42.5級普通硅酸鹽水泥,水泥摻量不小于 25%,摻5%膨潤土,水灰比1.0~2.0。
2、墻頂和墻底允許偏差小于±100,墻體垂直度偏差不大于1/200。
3、施工過程中一旦出現冷縫,則在接縫處對已成墻(長度為500)重新切割攪拌。
4、拐角處采用各向兩邊外推500以保證施工連續性和止水效果。
5、地下連續墻制作后應立即插入H型鋼(Q235b),型鋼的插入宜在攪拌樁施工結束后30min內進行。型鋼插入定位平行于基坑方偏差不超達50。垂直于基坑方向偏差不超過10,型鋼底標高偏差不超過30,垂直度偏差不超地1/200,型鋼長度偏差不超過10,形心轉角偏差不超過3度。
6、壓項梁釆用鋼筋混凝士,H型鋼穿過壓項梁(隔離材料釆用不易壓縮的硬質板材)并高出項面約500。
7、型鋼插入前必須涂刷減摩劑,以確保能順利撥出,
8、H型鋼宜釆用整材;當需釆用分段焊接時,應釆用坡口焊接。對接焊燈的坡口形成和要求應遵照《建筑鋼結枘焊接技術規程》的有關規定,焊縫質量等級不應低于二級,單根型鋼中焊接接頭不宜超過2個,燁按按頭的位置應避免在型鋼受力較大處,相鄰型鋼的接頭位置宜相互錯開,錯開距離不宜小于100mm。
9、在連續墻施工過程中,必須對基坑周邊沉降及位移進行監測,并根據監測資料,合理控銅施工參數。
10、基坑開挖前,釆用漿液試塊強度試驗對水泥士攪拌墻樁身強庋進行檢驗,毎臺班抽檢組,每組不少于2個取樣點,每個取樣點制作3件試塊。試塊28d無側限抗壓強度標準值不低于1.0MPa。
1根據《地下工程防水技術規范》(GB50108-2008),水泥土連續墻抗滲等級為P8。
TRD圍護主要風險和安全預防措施

現場圖片
-*-