項目概況

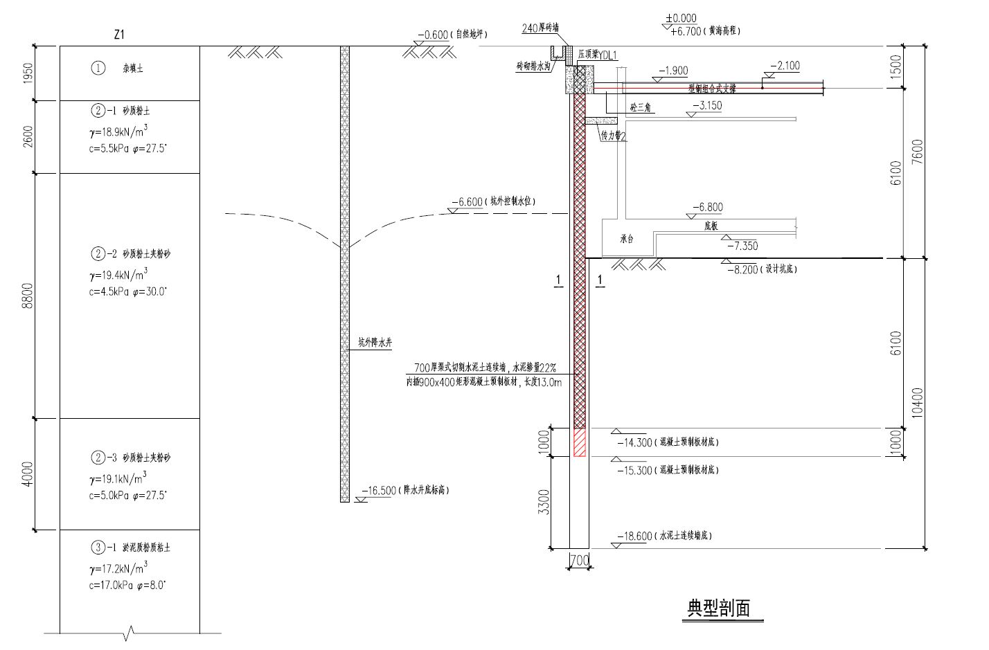
擬建項目位于杭州市江干區九堡鎮勝康街68號,浙江華鐵建筑安全科技股份有限公司園區內。采用渠式切割裝配式地下連續墻TAD工法(700厚渠式切割水泥土連續墻內插900*400矩形混凝土預制板材)結合一道型鋼組合式內支撐,采用渠式切割水泥土連續墻作為止水帷幕,臨邊深坑位置設置被動區加固。
TAD工法特點
根據本工程現場情況,結合工期要求考慮,選用適宜本工程圍護結構特點的TAD工法進行施工。

▲施工現場
節約用地
在水泥土連續墻中間插入預制墻板,相比傳統地下連續墻建造工藝,無需在接幅的外側施工止水樁,占用空間減少,節約了建設用地。
質量可靠
由于是裝配式的結構,可以按照規格進行成品預制(在工廠加工制作),在現場裝配施工,質量有保障。
高精度施工
在水平方向和垂直方向可以進行高精度定位施工。
施工省時
與傳統的混凝土地下連續墻比較,無需現場制作鋼筋籠及澆筑鋼筋混凝土連續墻的混凝土的養護,可以節省施工工期一半左右。
適應性高
由于是預制構件裝配,不需在場內綁扎鋼筋骨架,更能適應在有限(狹窄)場地施工。
兩墻合一
在建筑前期起到止水擋土功能,同時有效減少施工時間和施工成本。
綠色環保
因采用了預制構件,只需現場裝配,不產生泥漿外運,有利于環境的保護。
施工流程
測量定位﹥TRD臺班施工(先行)﹥裝配定位導向架并架設就位﹥混凝土預制板材現場驗收﹥吊裝混凝土預制板材﹥上下板材拼接并焊接﹥完成單幅TAD墻裝配﹥相鄰幅上下塊板材榫卯結構安插﹥完成TAD墻一個臺班裝配施工并進行下一循環。


▲TAD工法流程圖
施工要求

1)圍護樁采用700mm厚渠式切割水泥土連續墻內插900*400矩形混凝土預制板材。
2)水泥采用P.O42.5級普通硅酸鹽水泥,水灰比宜取1.0~2.0,水泥參入比應根據土質條件及要求的水泥土強度確定且不宜小于20%。
3)混凝土預制板材宜在工廠采用離心法工藝制作,混凝土強度等級不宜低于C80。
4)垂直度偏差均不應大于1/300,且平面允許偏差不應大于30mm,墻頂標高偏差不應大于50mm。
5)混凝土預制板材的長度不宜超過14m,橫截面形狀宜為矩形,寬度不宜小于600mm,厚度不宜小于300mm,采用離心工藝制作時,有效壁厚不應小于60mm。
6)TAD墻的平面布置應符合下列規定:平面形狀應簡單、規則,宜采用直線布置,減少轉角;圓弧段的曲率半徑不宜小于60m;基坑轉角處,兩個方向的水泥土連續墻均宜直線延伸至轉角外邊不少于2m,場地條件受限時,應采取措施保證轉角處的截水效果。
7)渠式切割水泥土連續墻的水泥用量、水灰比等參數應根據墻體性能要求和土質條件等因素確定,水泥宜采用強度等級不低于42.5級的普通硅酸鹽水泥。水泥摻入比應根據土質條件及要求的水泥土強度確定且不宜小于20%。水灰比宜取1.0~2.0;水泥土28d的無側限抗壓強度標準值不宜小于0.8MPa。水泥土連續墻的滲透系數不應大于1.0×10-7cm/s。
施工現場
TAD工法完成圖
▲基坑開挖中
▲TAD墻體完成面
-*-