艮山路(彭埠立交—東湖路立交)地下綜合管廊 (自來水供水管道維修改造)工程項目位于東湖路與下沙路交叉口,由三號TRD班組施工,合計施工850mm厚TRD止水方量為7700方,插入H700*300*13*24型鋼1800噸,在2017年7月17號進場,2017年11月10號施工結束。
工程概況

效果圖
艮山路市政綜合管廊設計范圍為錢潮路東(樁號K1+380)~聚首路東(樁號K9+240),全長約7864m。本標段綜合管廊全線布置在道路中心線北側車行道下,管廊標準段為四艙結構外尺寸B * H = 10.6m * 4.1m

綜合管廊平面圖

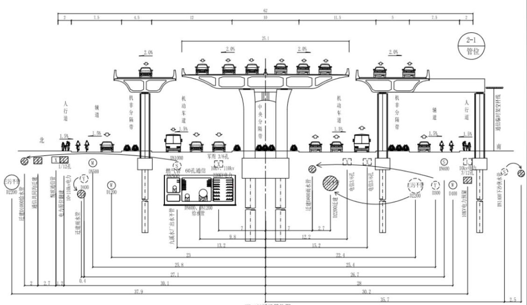
K7+180遷建管位圖(東湖公交西側)

過河倒虹段綜合管廊結構斷面
工程地質
根據野外鉆探、室內巖土試驗及原位測試資料,可將地勘探測深度范圍內巖土層共劃分為18個工程地質層,自上而下分布如下:①1雜填土、①2素填土、②2砂質粉土、③1砂質粉土、③2粉砂、③21淤泥質粉質黏土、③3砂質粉土、⑤1淤泥質粘土夾粉土、⑤21淤泥質粉質粘土夾粉砂、⑤3淤泥質粘土、⑧1粉質粘土、⑧3含砂粉質粘土、⑩2細中砂、⑩4圓礫、⑩41中砂、14)2粉細沙、16)2強風化泥質粉砂巖、16)3中風化泥質粉砂巖。

TRD施工方案
根據地勘報告本工程土方開挖范圍土質主要為雜填土、淤泥質粉質粘土、粉土粉砂層及粉細砂層。為減小基坑內抽降承壓水對周邊環境造成影響,本項目基坑采用850mm厚TRD等厚度水泥土攪拌墻隔斷坑內外承壓水的水力聯系,成墻長度為5087m。

施工現場



插入H型鋼
TRD工法(Trench-Cutting & Re-mixing Deep Wall Method),又稱等厚度水泥土地下連續墻工法,其基本原理是利用鏈鋸式刀具箱豎直插入地層中,然后作水平橫向運動,同時由鏈條帶動刀具作上下的回轉運動,攪拌混合原土并灌入水泥漿,形成一定強度和厚度的墻。
TRD工法通過水平橫向運動成墻,可形成沒有接口的等厚連續墻體,其止水防滲效果遠遠優于柱列式地下連續墻和柱列式攪拌樁加固,其主要特點是環境污染小、成墻連續、表面平整、厚度一致、墻體均勻性好、防滲性能好、施工安全,與傳統柱列式地下連續墻相比隔滲,經濟性好。
TRD工法適應粘性土、砂土、砂礫及礫石層等地層,在標貫擊數達 50~60 擊的密實砂層、無側限抗壓強度不大于5MPa的軟巖中也具有良好的適用性。可廣泛應用于超深隔水帷幕、型鋼水泥土攪拌墻、地墻槽壁加固等領域。